Viver o conforto no coração de Oliveira de Azeméis – Apartamento T3 Novo
- 3
- 2
- 129 m2
- 2
Descubra o Edifício Presa da Cachana, um novo empreendimento residencial que redefine o conceito de conforto e qualidade de vida em Oliveira de Azeméis.
Com uma arquitetura contemporânea, acabamentos de excelência e uma localização privilegiada, este projeto foi pensado para quem valoriza bem-estar, eficiência energética e proximidade a tudo o que é essencial.
Moderno e funcional, este projeto é composto por 36 frações habitacionais, distribuídas por diversas tipologias, de T0+1 a T3, todas concebidas para oferecer espaços amplos, luminosos e versáteis.
Cada apartamento distingue-se pela elevada qualidade dos materiais e a atenção ao detalhe, que garantem conforto e durabilidade, como caixilharia em alumínio com corte térmico e vidro duplo, estores elétricos térmicos, sistema de isolamento exterior em capoto, assegurando eficiência energética superior, ar-condicionado completo, bomba de calor para aquecimento da água, pré-instalação de aspiração central, cozinhas equipadas com eletrodomésticos TEKA e louças Sanitana, pavimentos flutuantes de alta resistência e revestimentos cerâmicos de primeira qualidade.
Tudo foi pensado para proporcionar o máximo conforto e uma experiência de residir em modernidade e sustentabilidade.
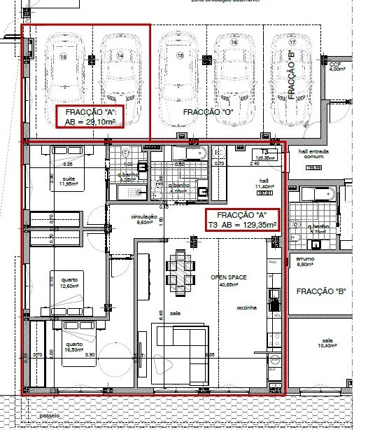
Esta fração em concreto, trata-se de um apartamento T3, com uma área privativa de 129 m2, composto por hall de entrada que dá acesso à cozinha e sala em open-space com 41 m2, dois quartos servidos de roupeiros embutidos, uma suite com 16 m2 de área total e um wc completo. Dispõe também de um lugar de garagem ao nível da cave para dois carros.
Situado a poucos metros do centro de Oliveira de Azeméis, este edifício beneficia de uma envolvente calma e residencial, mas próxima de comércio, escolas, serviços e espaços verdes. Está também estrategicamente localizado junto às principais vias de acesso, como a IC2 e A32, permitindo uma ligação rápida às cidades de São João da Madeira, Aveiro e Porto. Fica ainda a poucos minutos das principais zonas empresariais e industriais da região, ideal para quem procura equilíbrio entre trabalho e qualidade de vida.
Oliveira de Azeméis é uma cidade em crescimento, reconhecida pela sua tranquilidade, segurança e qualidade de vida. Com uma forte oferta cultural, desportiva e gastronómica, é o local perfeito para famílias, jovens casais ou investidores que procuram um ativo sólido num concelho com forte valorização imobiliária.
O seu novo lar está a nascer em Oliveira de Azeméis. Reserve já a sua fração e invista num futuro com conforto, qualidade e localização de excelência.
Numa perspetiva de investidor, esta poderá ser uma ótima oportunidade para rentabilidade segura. A conclusão da obra está prevista para 2029, numa altura em que a procura por habitação nova na região supera largamente a oferta disponível. O concelho de Oliveira de Azeméis apresenta uma taxa de valorização imobiliária anual média entre 10% e 12%, com tendência de crescimento sustentado devido à sua expansão industrial e melhoria das acessibilidades.
O baixo custo por metro quadrado em comparação com cidades vizinhas (São João da Madeira e Santa Maria da Feira), potencia a margem de valorização a curto e médio prazo.
Ideal para investimento em arrendamento ou revenda, beneficiando de uma procura crescente por parte dos jovens profissionais e famílias ligadas ao polo industrial e empresarial da região.
- Ano de construção: 2029
- Área privada: 129 m2
- Área de construção: 158 m2
- Área Útil: 115 m2
- Tipologia: T3
- Garagem: 2
- Casas de banho: 2
- Número frentes: 2
- Certificado energético: A
- Acessos Para Pessoas Com Mobilidade Reduzida
- Ar-Condicionado
- Bomba Calor
- Elevador
- Estores Eléctricos
- Focos Embutidos
- Combinado
- Exaustor
- Forno
- Maq. Lavar Loiça
- Micro-Ondas
- Placa















