Terreno com 208 m2 e com projeto em fase de aprovação em Canelas, V.N.Gaia
- 3
- Plano
- -
- -
Terreno urbano com projeto em fase de aprovação para uma moradia geminada de tipologia T3, localizado na freguesia de Canelas, concelho de Vila Nova de Gaia.
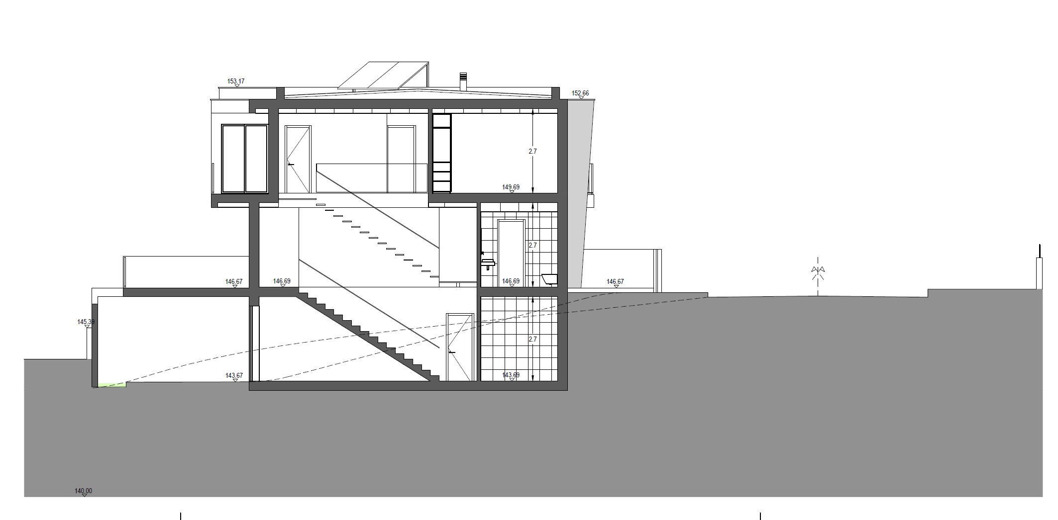
O terreno conta com uma área total de 208 m2 e uma área de construção de 240 m2, distribuída por 3 pisos. Dispõe de uma frente com 11 metros voltada a nascente e conta com iluminação pública e ligação à rede de saneamento, elétrica e de água.
O projeto solicitado à C.M. de V.N.G prevê a construção de uma moradia moderna com 2 pisos acima do solo e uma cave abaixo do solo. Cada piso possui cerca de 80 m2 de área.
Ao nível do rés-chão, usufrui na entrada de um pequeno jardim e no interior encontramos um wc de serviço e a cozinha e sala em open space, com acesso a uma enorme varanda para as traseiras. No 1º andar, a zona privativa é composta por um hall e casa de banho completa de apoio aos 3 quartos, sendo um deles uma suite com varanda. Todos os quartos são servidos de roupeiros embutidos.
Ao nível da cave encontramos uma ampla garagem para dois carros e arrumos. No exterior deste piso, existe um pátio e um pequeno jardim.
O artigo encontra-se inserido numa zona habitacional consolidada, tranquila e aprazível, distando a apenas 10 minutos da costa marítima, permitindo dessa forma aceder às várias praias aqui existentes, assim como cafés, restaurantes, farmácia, hotel, escola, casino e outros tipos de serviços e comércio.
Marque já a sua visita e confirme todo o potencial deste terreno!
Excluído do Sistema de Certificação Energético dos Edifícios (SCE) ao abrigo do artigo 4º. do Decreto-Lei nº. 118/2013 de 20 de agosto.
- Área de terreno: 208 m2
- Área de construção: 240 m2
- Número frentes: 3
- Acesso Pavimentado
- Iluminação Pública
- Ligação à Rede de Saneamento
- Ligação à Rede de Águas
- Ligação à Rede elétrica
- Loteamento
- Projeto Aprovado
- Vista de Cidade


















