Moradia T4+1 com Projeto Aprovado em Zona ARU no Centro Histórico da Feira
- 5
- 230 m2
- 200 m2
- -
Apresentamos-lhe uma moradia com características singulares, de duas frentes e com uma excelente orientação solar, voltada a Poente e Nascente, localizada no prestigiado Centro Histórico de Santa Maria da Feira. Esta propriedade oferece um notável equilíbrio entre o charme da traça antiga e o potencial da vida moderna. Encontra-se inserida em Zona ARU (Área de Reabilitação Urbana), um fator que eleva significativamente o seu valor, pois traduz-se em vantagens fiscais diretas, tornando a reconstrução mais acessível. Especificamente, o novo proprietário pode usufruir de isenção de IMI por um período de três anos (com possibilidade de renovação), isenção de IMT na primeira transmissão após a reabilitação (se destinada a habitação própria e permanente ou arrendamento), taxa reduzida de IVA a 6% nas obras de reabilitação, deduções à coleta em sede de IRS e ainda tributação reduzida de mais-valias e rendimentos prediais. Este quadro de benefícios, aliado ao facto de o imóvel ser vendido com um Projeto de Reconstrução já aprovado, permite uma rentabilização imediata e segura do investimento.
A moradia está posicionada no verdadeiro epicentro cívico e cultural da cidade, encontrando-se a escassos metros da Câmara Municipal, da imponente Igreja Matriz e do icónico Castelo da Feira, tendo à porta de casa uma vasta rede de comércio e serviços essenciais (bancos, finanças, supermercados, correios, entre outros).
Viver aqui é fazer parte da identidade de Santa Maria da Feira. A propriedade beneficia da proximidade a grandes eventos anuais que atraem milhares de visitantes, como a mundialmente reconhecida Viagem Medieval em Terra de Santa Maria (que decorre habitualmente entre o final de julho e o início de agosto), o Imaginarius (por norma em maio) e o parque temático de Natal, o Perlim (realizado entre o final de novembro e o final de dezembro). Esta centralidade e diversidade cultural e turística, confere ao imóvel um potencial excecional para Alojamento Local (AL), além de ser também uma excelente escolha para uma família numerosa que procura qualidade de vida e todas as comodidades urbanas.
A moradia é composta por dois pisos, tendo tido a última intervenção urbanística em 1969 (dispõe de licença de utilização), mantém o traço de uma casa antiga com fachada histórica, mas o projeto aprovado transforma-a num lar moderno e funcional, com uma distribuição otimizada para a luz e o conforto.
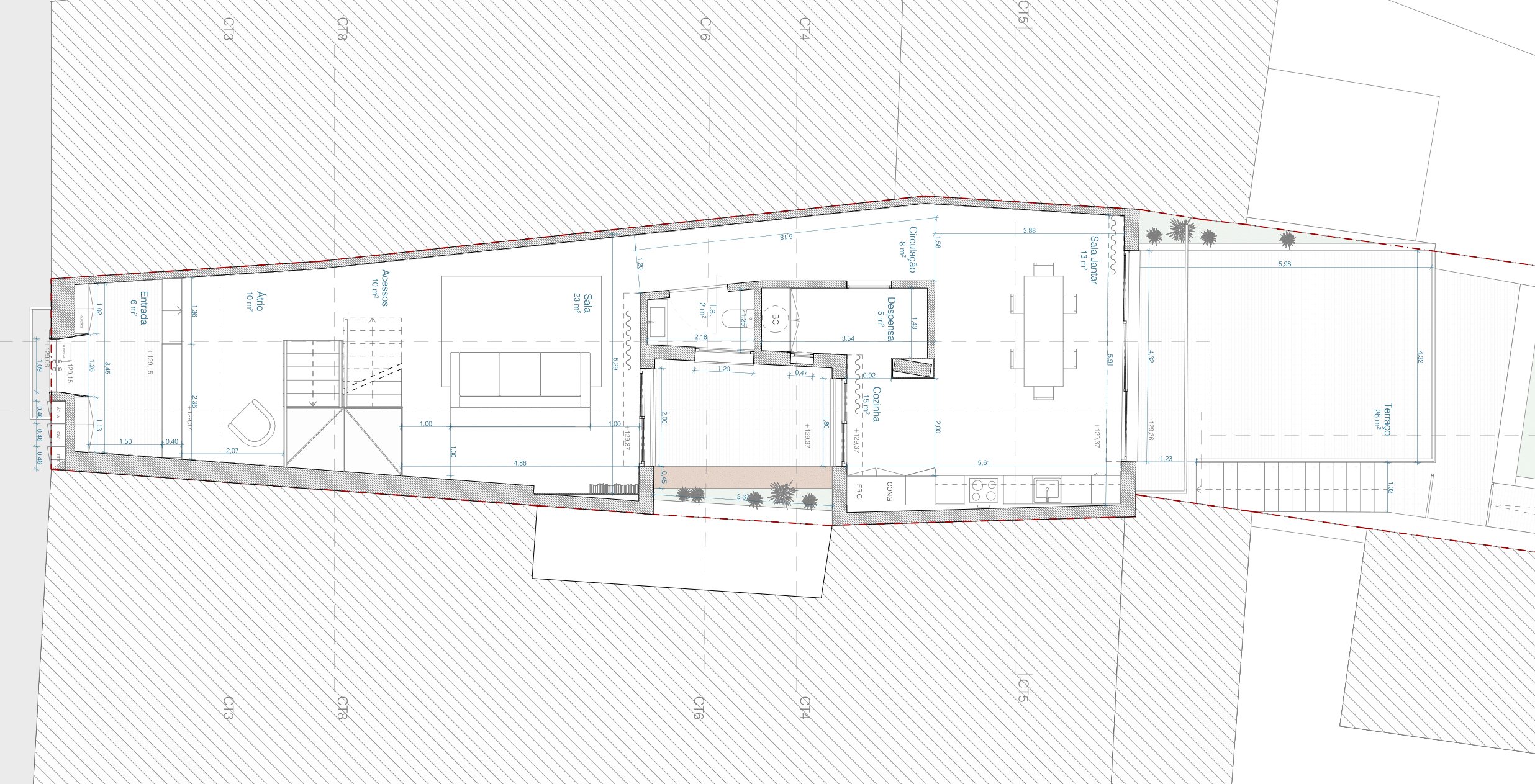
O projeto de reconstrução contempla o piso social ao nível do rés-do-chão, e este é definido por um hall de entrada generoso e uma distinta sala de estar. O coração da casa é a ampla sala e cozinha em open space, servida por despensa e apoiada por um wc de serviço. Este espaço de convívio abre-se para um pátio interior e para um terraço virado a nascente, proporcionando uma transição harmoniosa para a zona de jardim, ideal para refeições e lazer.
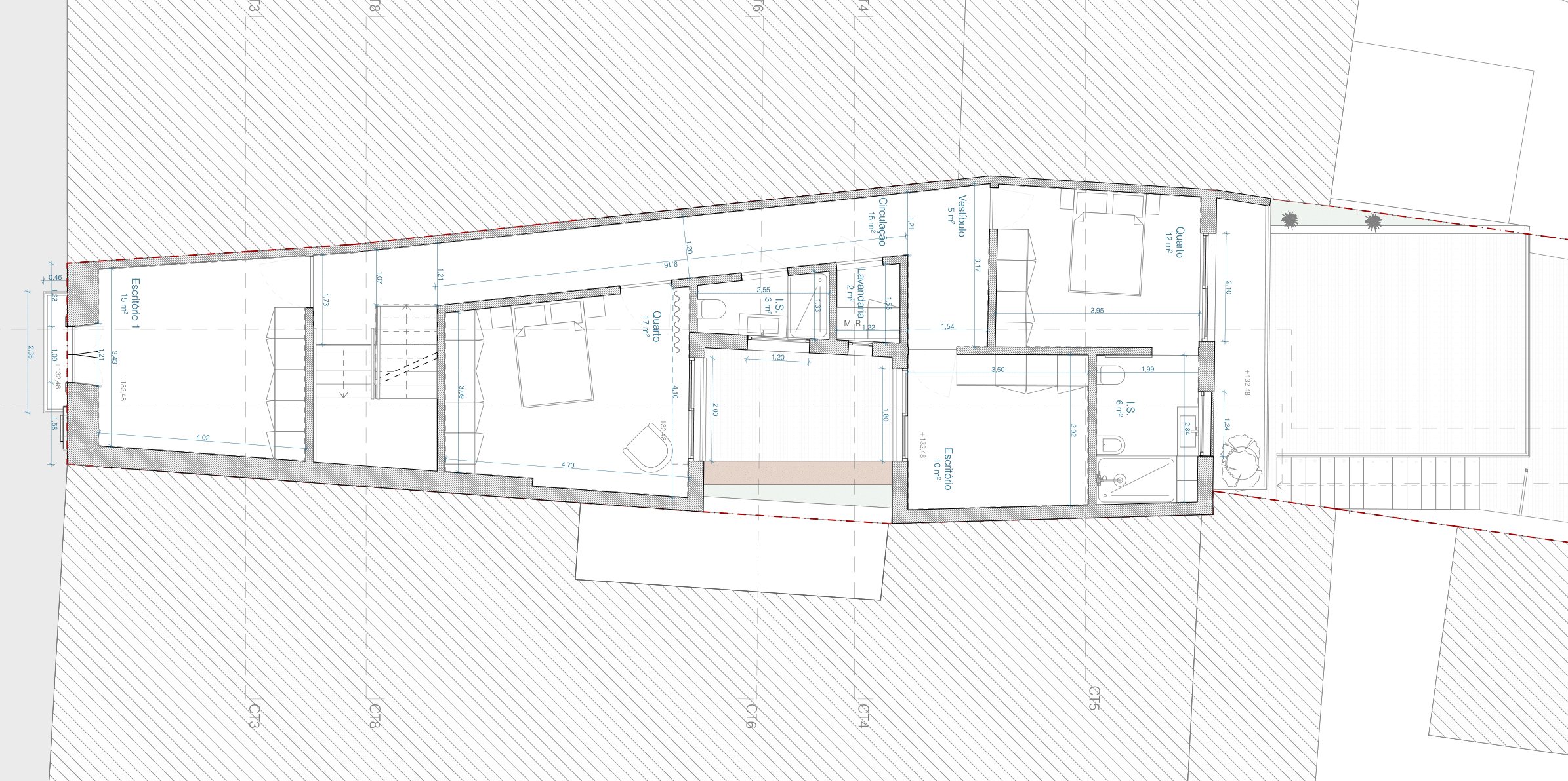
No primeiro andar temos a área privativa com um total de quatro quartos, incluindo uma suite principal virada a nascente com banho privativo, um quarto a poente com varanda e dois quartos intermédios com luz natural, garantida pela zona de pátio no centro da habitação. Este piso dispõe ainda de uma casa de banho completa e uma lavandaria.
A nível exterior, além do pátio e terraço, esta propriedade beneficia de uma ampla zona de jardim/horta com poço, garantindo um refúgio verde, privado e tranquilo no coração da cidade. O projeto contempla ainda um escritório reservado por baixo do terraço e no fundo do terreno um anexo, tipo marquise, que oferece uma versatilidade notável. Este espaço pode ser adaptado a oficina, atelier, cozinha exterior com zona de churrasqueira, entre outros.
Esta é a oportunidade real para investir no futuro, garantindo a sua habitação de sonho com todas as eficiências e benefícios fiscais da reabilitação, numa localização inigualável em Santa Maria da Feira.
Fale connosco e venha conhecer este projeto único e todo o seu potencial. Estamos aqui para ajudar em todo o processo de compra, estando também este imóvel disponível para financiamento bancário.
- Ano de construção: 1969
- Área privada: 200 m2
- Área de terreno: 230 m2
- Área de construção: 200 m2
- Área Útil: 170 m2
- Tipologia: T4
- Casas de banho: 3
- Número frentes: 2
- Certificado energético: B
- Furo
















































































