Lote com projeto aprovado para armazém em Cucujães
Oliveira de Azeméis, Vila de Cucujães
Terreno
Ref: V25100
Venda90 000 €
Prestação estimada:
346€/mês
- 1
- Plano
- -
- -
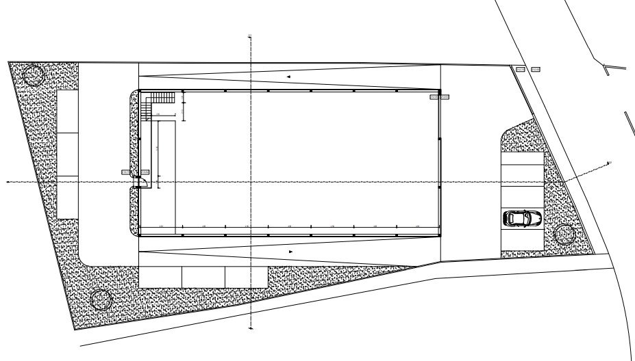
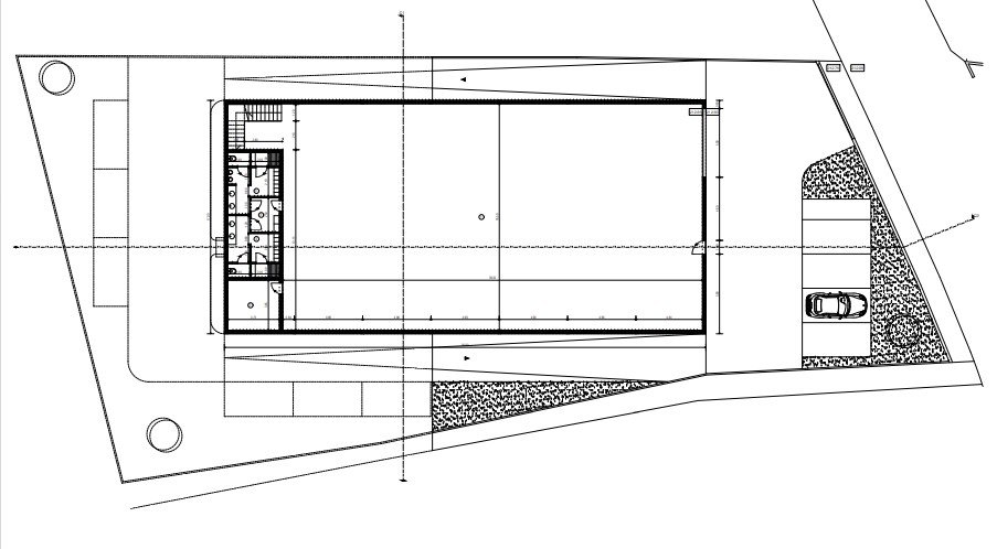
Apresentamos-lhe um lote de terreno com 1.618 m2 de área, com projeto aprovado para a construção de um armazém com 352 m2 de área de construção, na Vila de Cucujães, concelho de Oliveira de Azeméis.
O terreno é plano, com rápido acesso às estradas nacionais, como por exemplo a N327, e a todos os serviços e comércios no centro de Cucujães. Conta com uma frente de 25 metros voltada a nascente.
Venha conhecer este projeto que poderá ser seu!
- Área de terreno: 1618 m2
- Área de construção: 352 m2
- Número frentes: 1
- Acesso Pavimentado
- Iluminação Pública
- Projeto Aprovado
- Vista de Campo


















