Apartamento T3 com garagem no Bonfim, Porto
- 3
- 2
- 119 m2
- 1
Apresentamos um excelente apartamento de tipologia T3, localizado numa das zonas mais valorizadas e procuradas da cidade do Porto, a apenas 100 metros da Igreja Paroquial do Nosso Senhor do Bonfim e a cerca de 10 minutos a pé de várias estações de metro e comboio.
O Bonfim distingue-se pela sua centralidade, excelentes acessibilidades, proximidade ao centro histórico e forte dinâmica urbana, sendo hoje uma das áreas residenciais mais desejadas da cidade.
O edifício apresenta zonas comuns cuidadas, dois elevadores e uma organização funcional que garante conforto e fluidez na circulação dos moradores.
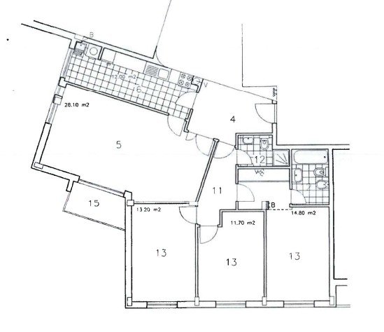
A entrada no apartamento é feita através de porta blindada, dando acesso a um hall espaçoso com pavimento em granito, que distribui de forma equilibrada a zona social e a zona privativa da habitação.
A cozinha, revestida a cerâmica e com piso em granito, encontra-se equipada com móveis superiores e inferiores, placa a gás e esquentador, dispondo ainda de zona de lavandaria com infraestrutura preparada para máquina de lavar roupa.
A ampla sala comum, com cerca de 26 metros², beneficia de uma excelente luminosidade natural e acesso direto a uma varanda orientada a poente, proporcionando um ambiente acolhedor e confortável.
A zona privativa é composta por um hall de distribuição, um banho completo que apoia os 2 quartos e uma suite com banho privativo. Todos os quartos dispõem de roupeiros embutidos e pavimento flutuante em madeira de carvalho, garantindo conforto térmico e acústico.
Na cave, dispõe de um lugar de garagem amplo para uma viatura, acrescentando comodidade e segurança ao quotidiano.
Este imóvel é ideal tanto para habitação própria, como para investimento em arrendamento, numa das zonas com maior procura no Porto.
Venha conhecer este excelente apartamento e descubra todo o seu potencial.
Agende já a sua visita connosco.
- Ano de construção: 2005
- Área privada: 120 m2
- Área de construção: 139 m2
- Área Útil: 102 m2
- Tipologia: T3
- Garagem: 1
- Casas de banho: 2
- Número frentes: 2
- Certificado energético: E
- Elevador
- Focos Embutidos
- Video Vigilância
- Vídeo Porteiro
- Esquentador
- Placa






















